鎌倉に暮らし、この街とともに歩んでいきたい方へ。
季節の移ろいと人の流れが穏やかに重なる場所で、ゆっくりと店を育てていける環境が整っています。
「一時的な出店」ではなく、この土地に根を張る想いを大切にされる方に、ぜひお使いいただきたい物件がございます。
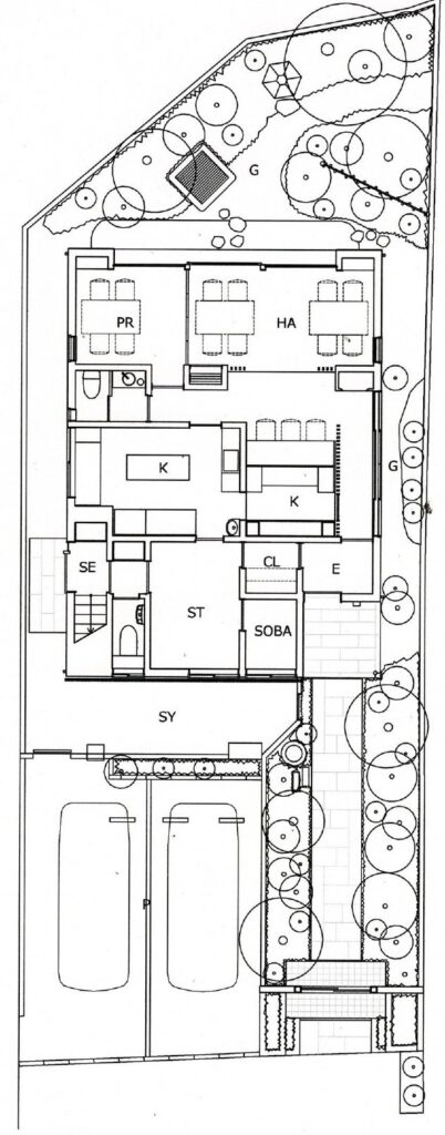
鎌倉市二階堂の住宅地に佇む日本料理店の居抜き物件。
1階店舗の客席にはカウンターとホール、そして個室がございます。いずれもテーブル席です。
美しい和風庭園を眺めながら食事を楽しめる設計となっています。
キッチンは調理場の他に、ストックヤードとそば打ち部屋がございます。
厨房機器はガステーブル、グリル、冷蔵庫、製氷機、グリストラップやダクトなどが揃っています(一部リース機器あり)。
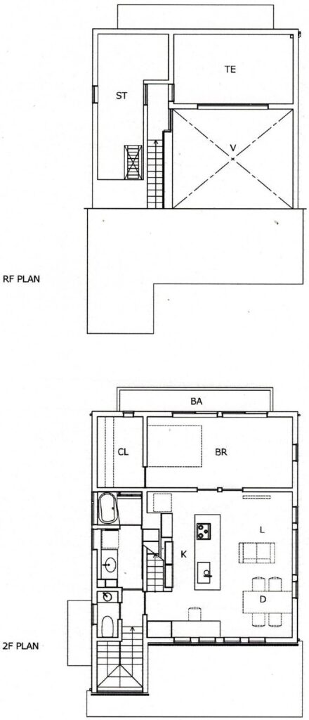
2階の住宅は、アイランドキッチンの1LDKに納戸やロフト、バルコニーがございます。
普通車3台分の駐車スペース付です。
鎌倉の名店「米倉」が新天地・茨城でオーベルジュを開業するため、長年愛された鎌倉の店舗をこのたび居住スペースと併せて一棟で賃貸することに。 鎌倉の静寂と美意識をまとった特別な一軒です。 日本料理「米倉」の余韻をそのままに、洗練された上質空間を引き継げます。 成熟した客層にふさわしい、希少なロケーションです。
2階は店主が住居として使っていたもので、お1人暮らし、お2人暮らし、小さなお子様がいらしても大丈夫な広さを家具付でご用意しています。
居抜き店舗で初期負担を軽減しながら、日々の営業に集中できる場所です。
業種等の詳細はメールまたは電話にてお問い合わせください。




























